|
|
| |
 |
 |
| TZMSQ Manual/ pneumatic lock gate series | TZMSQ Manual/ pneumatic lock gate series Working principle To control the opening and closing of the lock gate and further control the flow of material, its flashboard is driven by the cylinder to reciprocate move or a gear drives a rack and its upper gate to reciprocate.
CharacteristicsThe steel plate shell and lock gate rail are spliced and welded by tenons.
The special rail design ensures the lock gate opens and closes stably.
The cylinder with a magnetic switch is used for stable and reliable operations.
The electromagnetic valve can be adjusted to control the opening speed of the lock gate.
The lock gate has advanced fabrication means, simple structure, flexible technological lay-out and strong tightness.
Various pneumatic lock gates, butterfly valves, three-way valves etc. can be customized.
Application It is widely applied in the grain and cooking oil processing field, fodder processing field, cement field, chemicals works, to be fitted up with the elephant trunks for grains, bean pulps, and other powdery and small-block loose materials. Its opening degree can be controlled manually or pneumatically so as to limit the flow of material. With the lock gate being closed and opened, the granule and powdery materials are fed into the transportation and lifting machinery in an orderly manner before they are fed to the next operation. The manual lock gate is good for sealing, fumigation and storage of grains.
Main specifications and technical parameters The theoretical thrust and pressure in the table are calculated at the air pressure of 0.63MPa.
|
type
|
Diameter of cylinder
|
pressuer
|
magnet switch
|
theoretical thrust coefficient
|
theoretical thrust pressure
|
outline dimension
|
|
(mm)
|
(MPa)
|
contact capacity
|
(N)
|
(N)
|
(mm)
|
|
TZMSQ20x20
|
50、80
|
0.4-0.6
|
5VA AC24V AC220V
|
1205、3096
|
1019、2793
|
670x345x190
|
|
TZMSQ25x25
|
50、80
|
0.4-0.6
|
5VA AC24V AC220V
|
1205、3096
|
1019、2793
|
770x395x104
|
|
TZMSQ30x30
|
50、80
|
0.4-0.6
|
5VA AC24V AC220V
|
1205、3096
|
1019、2793
|
870x445x190
|
|
TZMSQ32x32
|
50、80
|
0.4-0.6
|
5VA AC24V AC220V
|
1205、3096
|
1019、2793
|
910x465x190
|
|
TZMSQ45x20
|
50、80
|
0.4-0.6
|
5VA AC24V AC220V
|
1205、3096
|
1019、2793
|
900x515x104
|
|
TZMSQ45x25
|
50、80
|
0.4-0.6
|
5VA AC24V AC220V
|
1205、3096
|
1019、2793
|
1000x515x104
|
|
TZMSQ50x50
|
50、80
|
0.4-0.6
|
5VA AC24V AC220V
|
1205、3096
|
1019、2793
|
1330x585x252
|
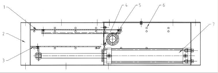
Structural drawing
|
1. Upper gate
|
2.Shell
|
3. Lower gate
|
4. Sealing strip
|
5.Drive mechanism
|
6.Supporting plate
|
7. Cylinder |

| Prev:wheat distributor Next:TCXC series planar magnetic separator |  |
|
|
|